balkon, świetna okolica, brak prowizji dla biura
Rzeszów Pokaż na mapie ›
Odświeżone: Czwartek, 30 Październik, 2025 09:53
580 000 zł
7945 zł/m2
Szczegóły ogłoszenia
- Kategoria: Mieszkania / Sprzedaż
- Powierzchnia:73 m2
- Liczba pokoi:4 pokoje
- Zabudowa:Blok
- Tech. budowy:Pustak
- Piętro :1 piętro
- Liczba pięter:1 piętro
- Rynek:Pierwotny
- Rok budowy:2023
- Sprzedaż:Pośrednik
- Inf. dodatkowe:Balkon
- Cena: 580 000 zł / 7945 zł/m2
Opis oferty
Biuro nieruchomości Pierwsze Piętro prezentuje przestronnemieszkanie z balkonem usytuowane w spokojnej i bardzo dobrze
skomunikowanej okolicy przy ul. Dworzysko w Rzeszowie.
Brak prowizji dla biura nieruchomości oraz podatku PCC.
Cechy nieruchomości:
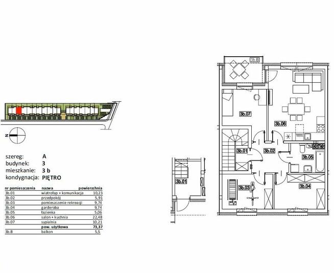
- powierzchnia użytkowa: 73,37 m2 + balkon (5,50 m2)
- sprzedawane w stanie deweloperskim
- w skład mieszkania wchodzi: wiatrołap + komunikacja (10,23 m2),
przedpokój (5,91 m2), dwa pokoje (po 9,74 m2), sypialnia (10,21 m2),
łazienka (5,06 m2) oraz salon z aneksem kuchennym (22,48 m2)
- piętro: 1 z 1
- ogrzewanie mieszkania oraz wody za pomocą pieca dwufunkcyjnego z
zamkniętą komorą spalania
- miejsce postojowe przed budynkiem w cenie
- oddanie budynków przewidziane na I kwartał 2025 roku
Atuty nieruchomości:
- funkcjonalny rozkład pomieszczeń
- cicha i spokojna okolica wśród terenów zielonych
- osiedle bardzo dobrze skomunikowane (1 min do przystanku, 8 min do
centrum Rzeszowa, 5 min do dróg A4/S19/S9, 15 min do Jasionki)
- indywidualne opomiarowanie, brak części wspólnych z sąsiadem
- przestronny salon z aneksem kuchennym (19,72 m2) z wyjściem na
balkon od strony wschodniej
- dwa niezależne pokoje
- brak czynszu
- okna PVC, 3-szybowe
- drzwi zewnętrzne ocieplone w kolorze okien
- ściany zewnętrzne z pustaków ceramicznych
- docieplenie styropianem (20 cm)
- tynki wewnętrzne gipsowe
- kostka brukowa na podejściach oraz parkingach
- możliwość dokupienia drugiego miejsca postojowego (szczegóły u
agenta prowadzącego)
- mieszkanie dwustronne / ekspozycja: wschód, zachód
Cena nieruchomości:
- 580 000 PLN - cena za nieruchomość w stanie deweloperskim
Lokalizacja:
- Rzeszów, os. Przybyszówka, ul. Dworzysko
Krystian Kowal
tel. +48 574 - pokaż numer telefonu -
mail. @
nr propozycji: KK 295/2
Biuro Nieruchomości
Pierwsze Piętro
al. Okulickiego 12
35-222 Rzeszów
Агентство нерухомості «Перший
поверх» представляє простору
квартиру з балконом, яка знаходиться в
тихому та дуже зручному районі за
адресою вул. Садиба в Жешуві.
Без комісії для агентства нерухомості
та без податку на PCC.
Характеристики нерухомості:
- корисна площа: 73,37 м2 + балкон (5,50 м2)
- продається в стані забудовника
- до складу квартири входять: тамбур +
комунікації (10,23 м2), хол (5,91 м2), дві
кімнати (9,74 м2 кожна), спальня (10,21 м2),
санвузол (5,06 м2) та вітальня з кухнею
(22,48 м2)
- поверх: 1 з 1
- опалення квартири та води за
допомогою двофункціональної печі із
закритою камерою згоряння
- паркомісце перед будинком входить у
вартість
- введення в експлуатацію будинків
заплановано на І квартал 2025 року
Переваги нерухомості:
- функціональне планування приміщення
- тихий та спокійний район серед
зелених зон
- маєток дуже добре сполучений (1 хв до
автобусної зупинки, 8 хв до центру
Жешува, 5 хв до доріг A4/S19/S9, 15 хв до
Ясьонки)
- індивідуальний облік , немає
спільних ділянок з сусідами
- простора вітальня з кухнею (19,72 м2) з
виходом на балкон зі східної сторони
- дві окремі кімнати
- без орендної плати
- Вікна ПВХ, склопакет
- зовнішні двері утеплені під колір
вікон
- зовнішні стіни з керамічних блоків
- Утеплення пінопластом (20 см)
- внутрішні гіпсові штукатурки
- бруківка на під'їздах та
автостоянках
- можливість придбання другого
паркомісця (деталі у менеджера)
- двостороння квартира /вихід: схід,
захід
Ціна нерухомості:
- 580 000 злотих - ціна нерухомості в стані
забудови
Розташування:
- Жешув, ос. Пшибишувка, вул. Садиба
Крістіан Коваль
тел. +48 574 - pokaż numer telefonu -
електронна пошта. @
пропозиція №: КК 295/2
Агентство нерухомості
Перший поверх
al. Okulickiego 12
35-222 Жешув
The real estate agency Pierwsze Piętro presents a spacious apartment
with a balcony located in a quiet and very well-connected area at
Dworzysko Street in Rzeszów.
No real estate agency commission or PCC tax.
Property Features:
- usable area: 73.37 m2 + balcony (5.50 m2)
- sold in developer condition
- the apartment consists of: vestibule + communication (10.23 m2),
hall (5.91 m2), two rooms (9.74 m2 each), bedroom (10.21 m2), bathroom
(5.06 m2) and living room with kitchenette (22.48 m2)
- floor: 1 of 1
- heating of the apartment and water using a dual-function furnace
with a closed combustion chamber
- parking space in front of the building included in the price
- completion of the buildings is planned for the first quarter of 2025
Advantages of the property:
- functional layout of rooms
- quiet and peaceful area among green areas
- very well connected estate (1 min to the bus stop, 8 min to the
center of Rzeszów, 5 min to the A4/S19/S9 roads, 15 min to Jasionka)
- individual metering , no shared areas with neighbors
- spacious living room with kitchenette (19.72 m2) with access to the
balcony on the east side
- two independent rooms
- no rent
- PVC windows, triple glazed
- external doors insulated in the color of the windows
- external walls made of ceramic blocks
- Styrofoam insulation (20 cm)
- internal gypsum plasters
- paving stones on approaches and parking lots
- possibility of purchasing a second parking space (details from the
managing agent)
- two-sided apartment / exposure: east, west
Property price:
- PLN 580,000 - price for the property in developer standard
Location:
- Rzeszow, Przybyszowka housing estate, Dworzysko street
Krystian Kowal
tel. +48 574 - pokaż numer telefonu -
mail. @
proposal no.: KK 295/2
Real Estate Office
First Floor
Okulickiego 12
35-222 Rzeszow
10 % rabatu na zakupy w Merkury Market dla naszych Klientów
Niniejsze ogłoszenie nie stanowi oferty w rozumieniu przepisów
kodeksu cywilnego oraz innych właściwych przepisów prawnych, a dane
w niej zawarte mają jedynie charakter informacyjny.
Sprawdź zainteresowanie tym ogłoszeniem
Wyświetlenia
Data dodania
Ostatnio widziany
Obserwujących
Wysłane zapytania
Odsłony telefonu
Powiadom o podobnych ogłoszeniach
Lokalizacja: Rzeszów
Kategoria: Nieruchomości » Mieszkania » Sprzedaż
Cena: od 493000 zł do 667000 zł Powierzchnia : od 62 m2 do 84 m2
Chcę otrzymywać powiadomienia o nowych ofertach
- Wypromuj ogłoszenie
- Zgłoś naruszenie
- Drukuj ulotkę
- Edytuj/usuń ogłoszenie
- Udostępnij ogłoszenie
- Dodaj na Facebook


















