Biura Rzeszów Rejtana
Rzeszów / Nowe Miasto Pokaż na mapie ›
Ogłoszenie archiwalne Wygasło: Czwartek, 11 Wrzesień, 2025 08:15
2 530 zł
Szczegóły ogłoszenia
- Kategoria: Biura i lokale / Do wynajęcia
- Przeznaczenie:Biurowe
- Powierzchnia:50,60 m2
- Sprzedaż:Bez pośredników
- Cena: 2 530 zł
Opis oferty
ferujemy do wynajmu lokale biurowe na II piętrze przy al. Rejtana 53 w Rzeszowie. Budynek posiada własną windę. Obecnie pokoje są przygotowane do pracy typowo biurowej (usługowej). Biura są wyposażone w szybki internet (po kilka gniazdek na pokój), biurka, meble (te na odzież wierzchnią są wbudowane we wnęki). Pokoje do tej pory były użytkowane przez firmę technologiczną, więc jest wszystko, co niezbędne do efektywnej i komfortowej pracy w biurze.Istnieje możliwość własnej aranżacji wynajętej powierzchni (kolory ścian, własne dodatkowe umeblowanie, dekoracje itp.). Dla jasności, każdy pokój może być osobnym wynajmem. Jeśli jesteś zainteresowany konkretnym pokojem, to po prostu zadzwoń.
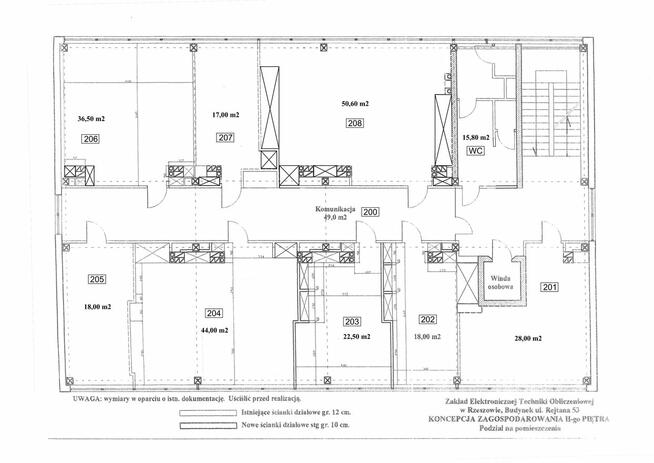
Na wynajmowanym piętrze znajdują się następujące pomieszczenia – dokładnie widać to na zdjęciu z planem rozmieszczenia pokoi:
• Pokój 202 o pow. 18,00 m2
• Pokój 203 o pow. 22,50 m2
• Pokój 204 o pow. 44,00 m2
• Pokój 205 o pow. 18,00 m2
• Pokój 206 o pow. 36,50 m2
• Pokój 207 o pow. 17,00 m2
• Pokój 208 o pow. 50,60 m2
• Korytarz 49,00 m2
• Toalety 15,80 m2
Widoczny na planie pokój nr. 201 jest obecnie wynajmowany i nie jest brany pod uwagę przy tym ogłoszeniu.
W sumie do dyspozycji w siedmiu pokojach mamy blisko 190 m2 powierzchni, którą możemy wykorzystać do prowadzenia biznesu i oferowania wygodnej pracy swoim pracownikom. Oprócz toalety pozostałe pomieszczenia są dostępne za szklaną ścianką z szerokimi drzwiami, a cała przestrzeń biurowa jest zabezpieczona alarmem. Dodatkowo każdy pokój zamykany jest zamkiem magnetycznym otwieranym kartą (jak w hotelach). Na korytarzu we wnęce urządzony jest mini aneks kuchenny.
W bliskiej odległości od budynku (promień 100 m) jest jeszcze dostępnych wiele bezpłatnych miejsc parkingowych.
Lokale są doskonale zlokalizowane, bo w odległości około 150 m od obwodnicy Rzeszowa i 100 m od przystanków MPK. W promieniu 50 m znajdują się lokale gastronomiczne z przystępnymi cenami za posiłki. Obok budynku znajduje się Przychodnia Medycyny Pracy Centrum Medyczne Medyk oraz Oddział PKO Banku Polskiego. Na przeciwko jest supermarket E.Leclerc Rzeszów i Plaza Rzeszów w tym siłownia CityFit.
Dodatkowa informacja
W czynszu zawarte są koszty wody, ścieków, wywozu nieczystości oraz podatku od nieruchomości. Centralne ogrzewanie, klimatyzacja i energia elektryczna będą rozliczane oddzielnie według procentowego zużycia - szacunkowo można przyjąć około 20 zł/netto/mc. za m2. Usługa kompleksowego sprzątania to około 150 zł/netto/mc. na osobę – jest to tylko opcja. Oczywiście podana kwota wynajmu jest w netto.
Jesteśmy otwarci na negocjacje cenowe przy wynajmie całości (możliwa cena wówczas za m2 to 46 zł).
Dodatkowo dla wynajmującego lokale (lokal) oferujemy na preferencyjnych warunkach usługi świadczone przez nas osobiście:
• Dostęp do zasobów serwerowni na zasadzie kolokacji serwera lub wynajmu dedykowanego serwera fizycznego, lub wynajmu serwera wirtualnego z pełną jego obsługą, która znajduje się w budynku obok (Rejtana 55).
• Dzierżawa wielofunkcyjnego urządzenia drukującego
• Wdrożenie systemu księgowego i kadrowo-płacowego np. dla biura rachunkowego
• Również sprzedaż i instalację niezbędnego sprzętu komputerowego wraz z oprogramowaniem np. Windows, Office365 itd. – dysponujemy tanimi urządzeniami poleasingowymi
• Stała obsługa informatyczna – jedna umowa na różne usługi IT
Podsumowując, wynajmując u nas lokale (lokal), lub całe piętro, możesz stworzyć komfortowe miejsce do pracy dla swoich pracowników z dobrze wyposażoną przestrzenią. Nasza oferta jest prawdopodobnie najtańszym wariantem w tej okolicy. Z nami zawsze można się porozumieć na zasadzie win-win.
Sprawdź zainteresowanie tym ogłoszeniem
Wyświetlenia
Data dodania
Ostatnio widziany
Obserwujących
Wysłane zapytania
Odsłony telefonu
Powiadom o podobnych ogłoszeniach
Lokalizacja: Rzeszów
Kategoria: Nieruchomości » Biura i lokale » Do wynajęcia
Cena: od 2000 zł do 3000 zł Powierzchnia : od 43 m2 do 59 m2
Chcę otrzymywać powiadomienia o nowych ofertach
ZETO-RZESZÓW Sp. z o.o.
Konto firmowe
Na Lento.pl od 18 lip 2017
Strona użytkownika
- Wypromuj ogłoszenie
- Zgłoś naruszenie
- Edytuj/usuń ogłoszenie
- Udostępnij ogłoszenie
- Dodaj na Facebook



















