Lokal do wynajęcia 50 m2 biuro Rzeszów centrum
Rzeszów Pokaż na mapie ›
Odświeżone: Czwartek, 19 Luty, 2026 10:51
2 950 zł
Szczegóły ogłoszenia
- Kategoria: Biura i lokale / Do wynajęcia
- Przeznaczenie:Biurowe
- Powierzchnia:50 m2
- Sprzedaż:Bez pośredników
- Cena: 2 950 zł
Opis oferty
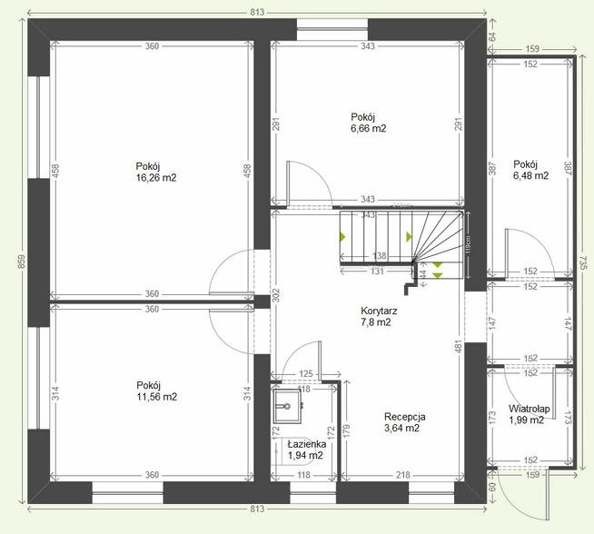
Do wynajęcia lokal użytkowy - całe piętro na wysokim parterze ok. 50m2w budynku handlowo-usługowym w Rzeszowie ul. Lubelska 23A.
Opis lokalu:
- powierzchnia: ok. 50 m²
- pomieszczenia: 4 pokoje + łazienka + recepcja
- lokalizacja blisko centrum, bezpośrednio przy głównej ulicy wylotowej na Lublin
- parking dla klientów
- budynek i plac ogrodzony
- monitoring oraz system alarmowy
- budynek po generalnym remoncie
Lokal doskonale nadaje się na biura, gabinety lub inną działalność usługową.
gwarantując jednocześnie doskonałą widoczność i łatwy dojazd dla klientów.
Możliwość również wynajęcia powierzchni magazynowej.
Cena wynajmu 2950 zł
Opłaty eksploatacyjne 9 zł/m2
Media dodatkowo: prąd, ogrzewanie i woda.
Kontakt wyłącznie tel. pod nr. 533 - pokaż numer telefonu -
Sprawdź zainteresowanie tym ogłoszeniem
Wyświetlenia
Data dodania
Ostatnio widziany
Obserwujących
Wysłane zapytania
Odsłony telefonu
Powiadom o podobnych ogłoszeniach
Lokalizacja: Rzeszów
Kategoria: Nieruchomości » Biura i lokale » Do wynajęcia
Cena: od 2500 zł do 3500 zł Powierzchnia : od 43 m2 do 58 m2
Chcę otrzymywać powiadomienia o nowych ofertach
Lubelska
Konto prywatne
Na Lento.pl od 27 lis 2025
Strona użytkownika
- Wypromuj ogłoszenie
- Zgłoś naruszenie
- Drukuj ulotkę
- Edytuj/usuń ogłoszenie
- Udostępnij ogłoszenie
- Dodaj na Facebook













